1530 S Gordon St SW, Atlanta, GA 30310
Toggle Navigation
Images
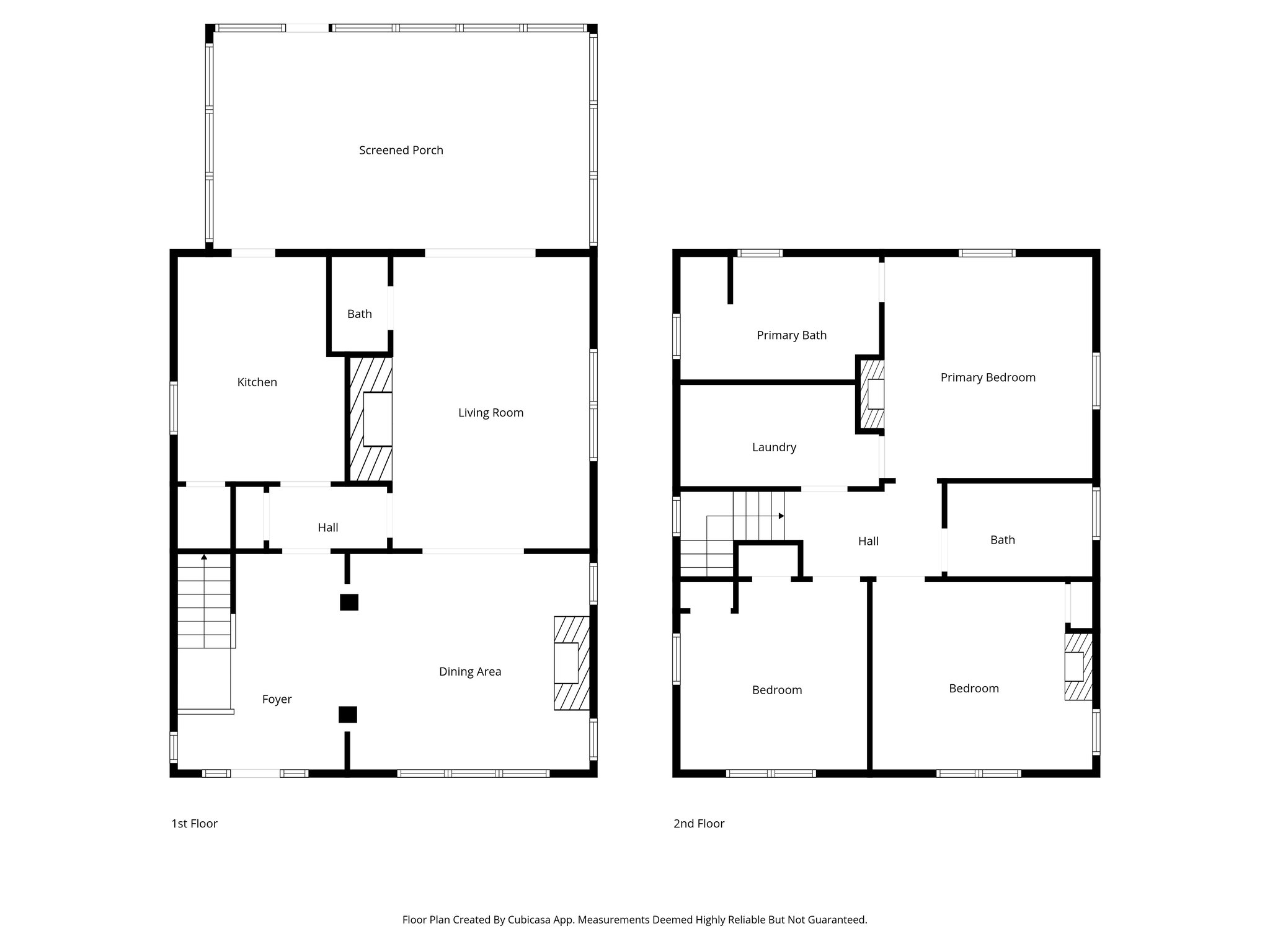
Floor Plans
Map
1530 S Gordon St SW
Atlanta, GA 30310
Scroll to Content
Images
Slideshow
Photo Grid
Hide
Previous
Next
Show more
Floor Plans
Slideshow
Photo Grid
Hide
Previous
Next