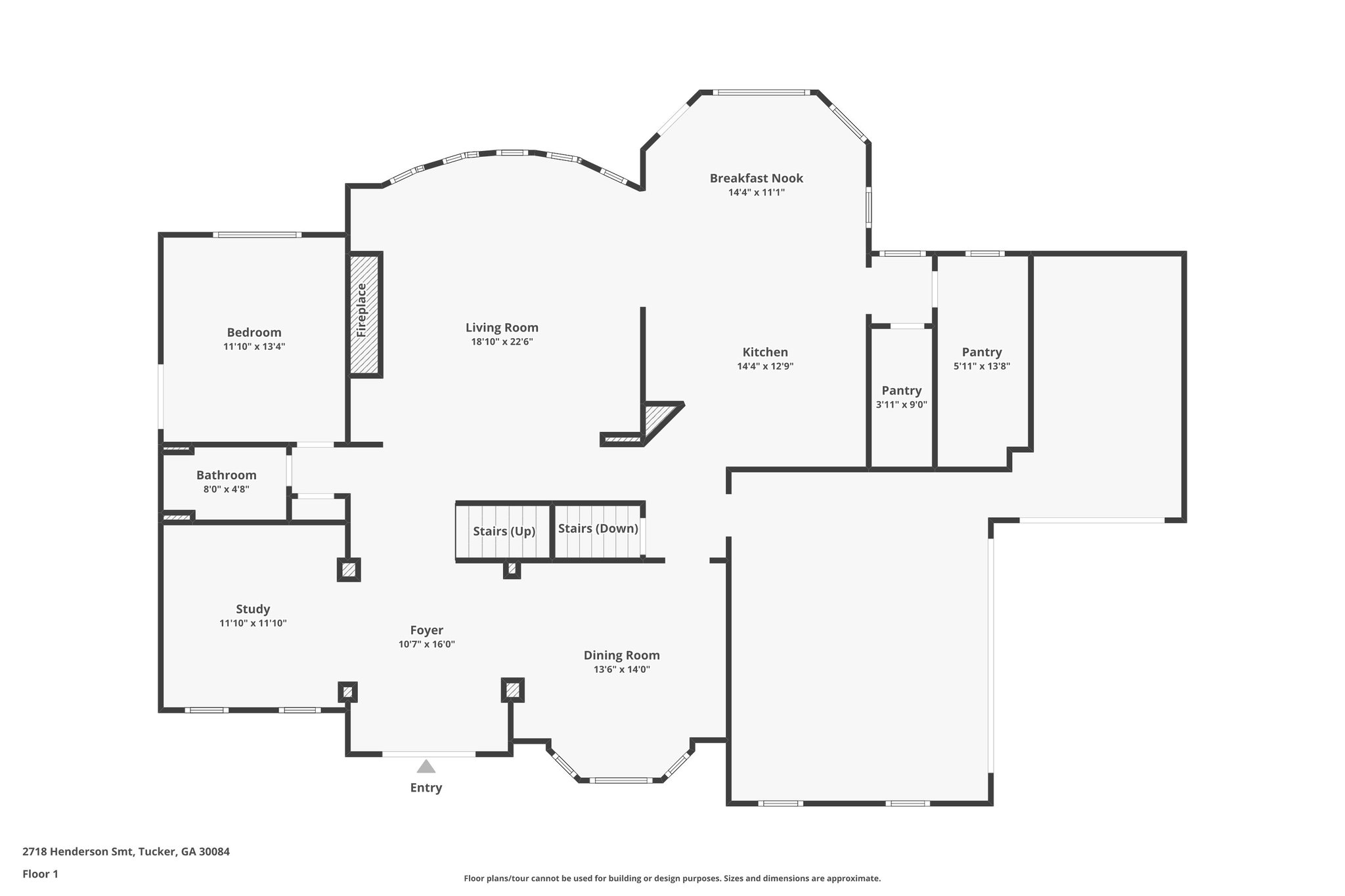
2718 Henderson Summit, Tucker, GA 30084
Toggle Navigation
Images
Floor Plans
3D Tour
Map
2718 Henderson Summit
Tucker, GA 30084
Scroll to Content
Images
Slideshow
Photo Grid
Hide
Previous
Next
Show more
Floor Plans
Slideshow
Photo Grid
Hide
Previous
Next
3D Tour