611 Crosswinds Cir, Marietta, GA 30008
Toggle Navigation
Images
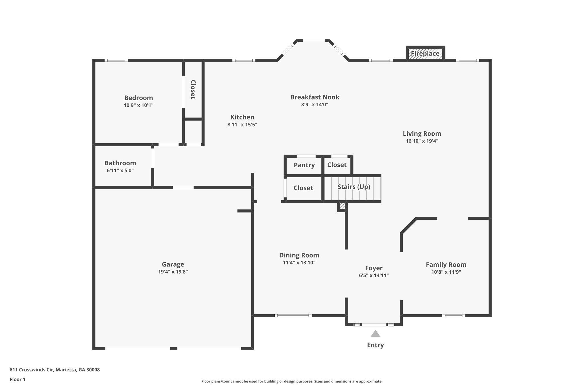
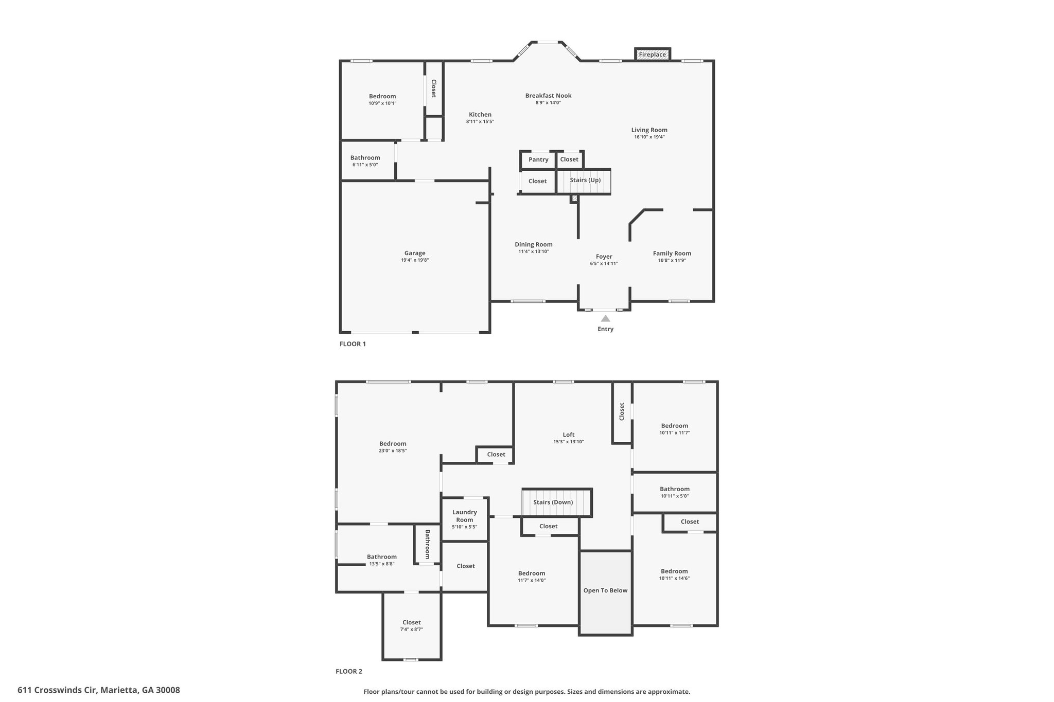
Floor Plans
3D Tour
Map
611 Crosswinds Cir
Marietta, GA 30008
Scroll to Content
Images
Slideshow
Photo Grid
Hide
Previous
Next
Show more
Floor Plans
Slideshow
Photo Grid
Hide
Previous
Next
3D Tour