1727 Liberty Ln, Roswell, GA 30075
Toggle Navigation
Images
Floor Plans
3D Tour
Map
1727 Liberty Ln
Roswell, GA 30075
Scroll to Content
Images
Slideshow
Photo Grid
Hide
Previous
Next
Show more
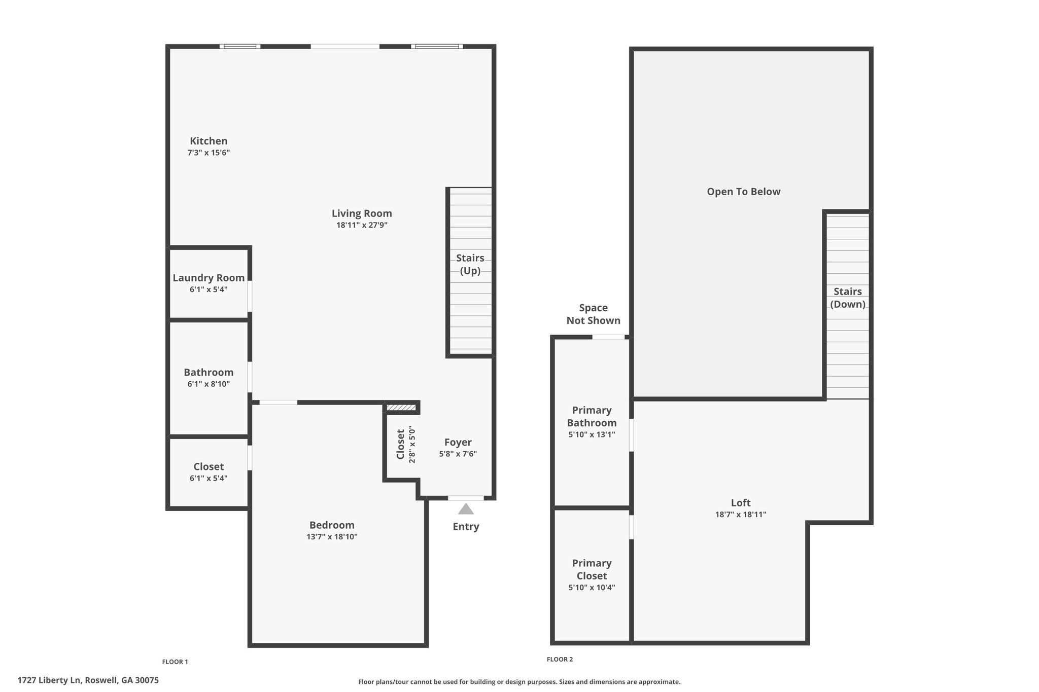
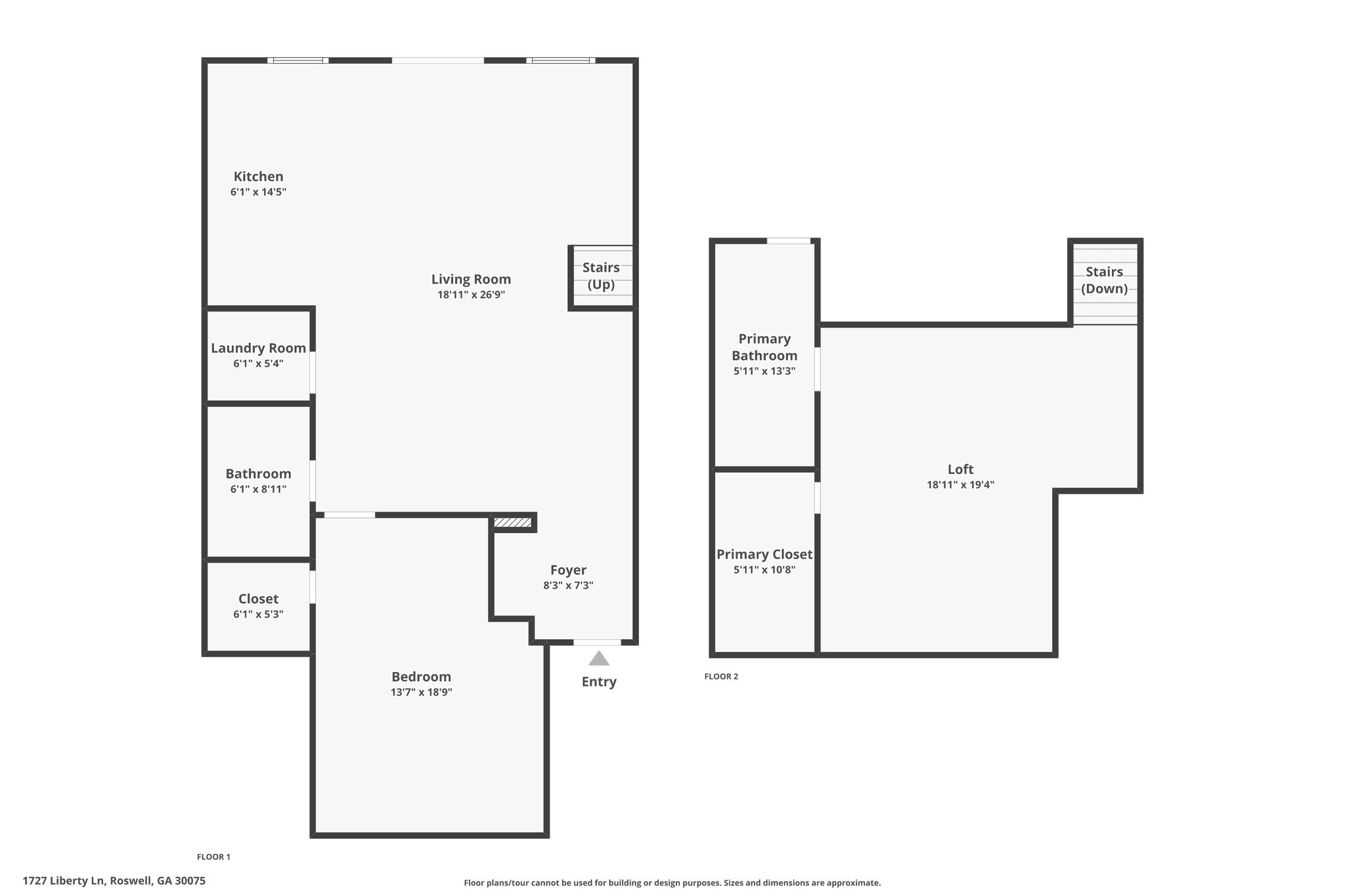
Floor Plans
Slideshow
Photo Grid
Hide
Previous
Next
3D Tour