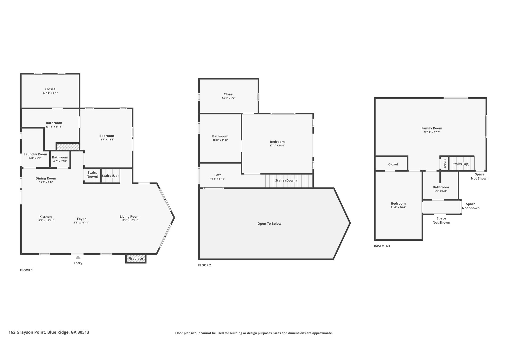
162 Grayson Point, Blue Ridge, GA 30513
Toggle Navigation
Images
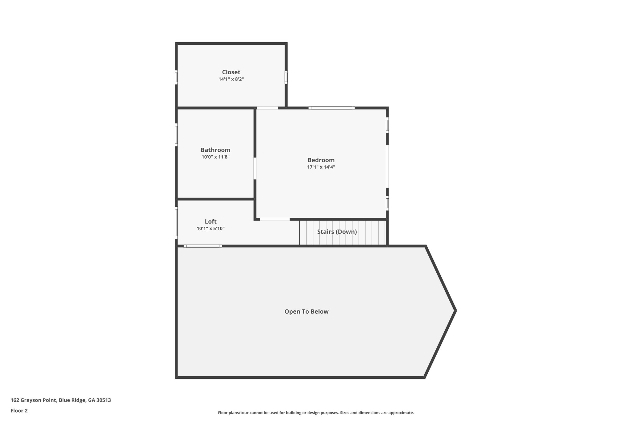
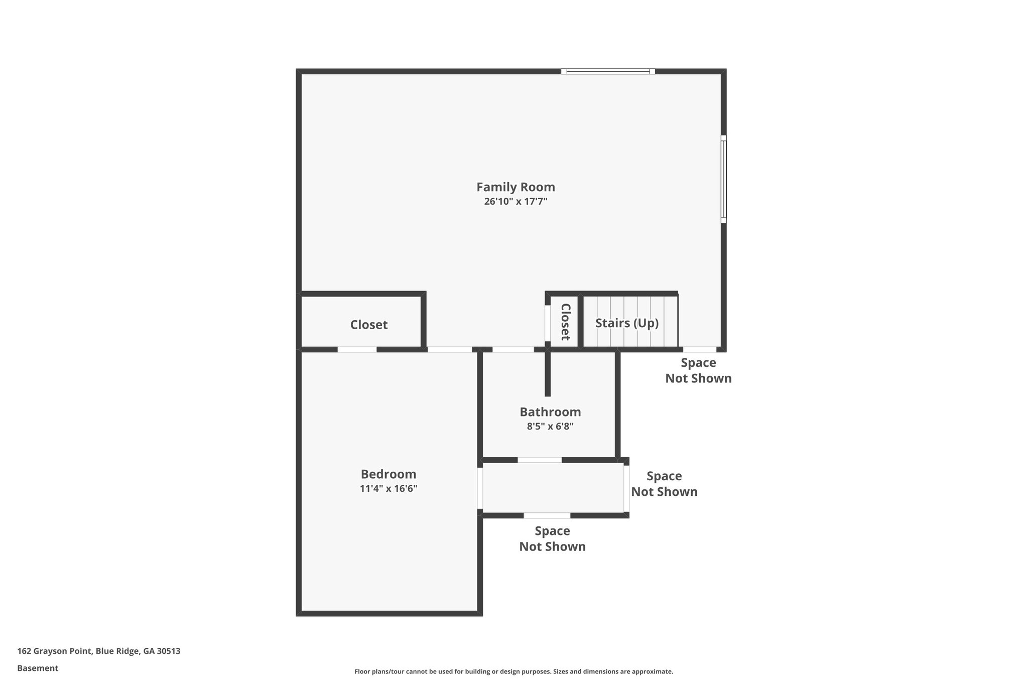
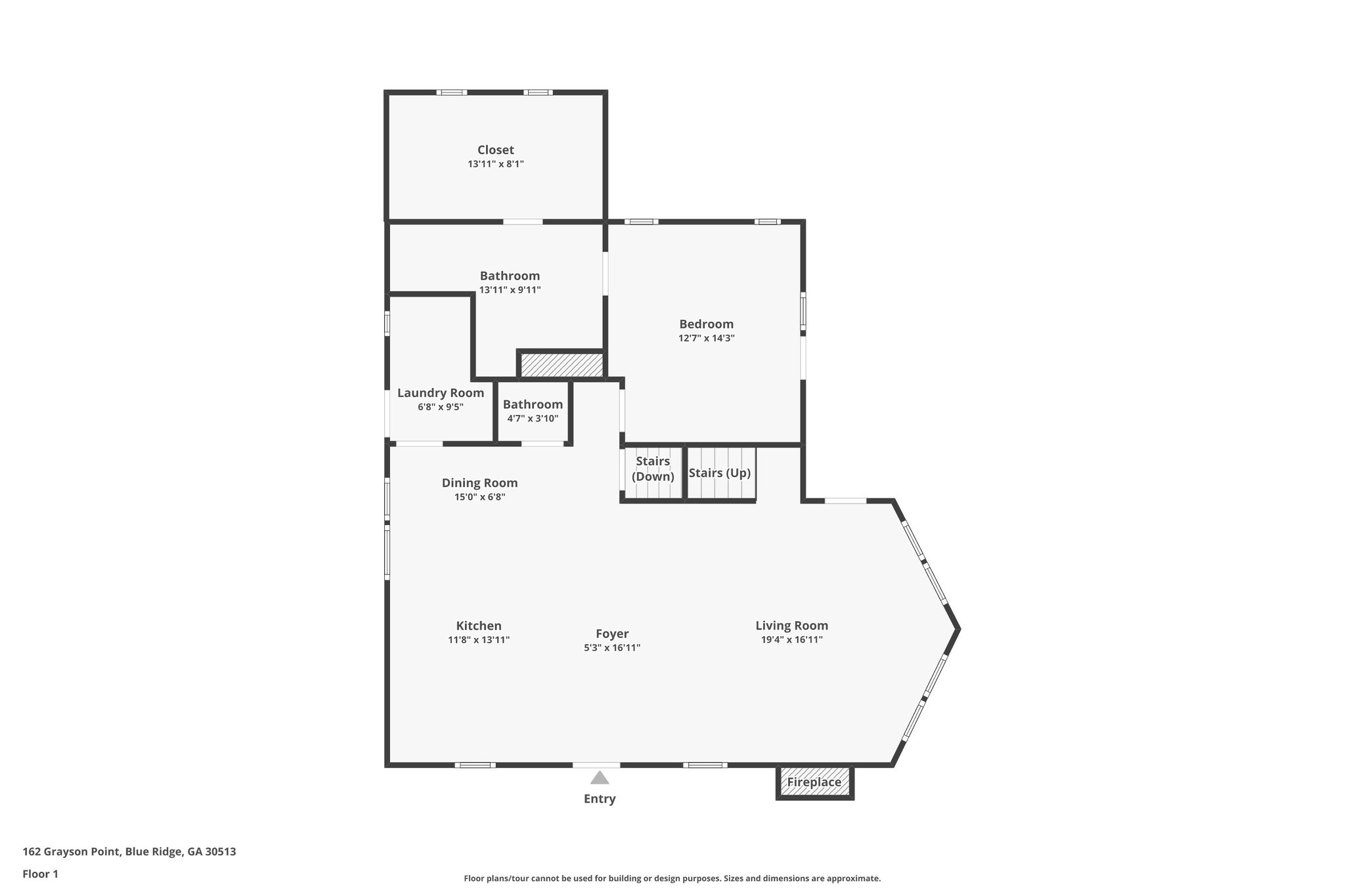
Floor Plans
3D Tour
Map
162 Grayson Point
Blue Ridge, GA 30513
Scroll to Content
Images
Slideshow
Photo Grid
Hide
Previous
Next
Show more
Floor Plans
Slideshow
Photo Grid
Hide
Previous
Next
3D Tour