2918 Level Ridge Rd SE, Atlanta, GA 30354
Toggle Navigation
Images
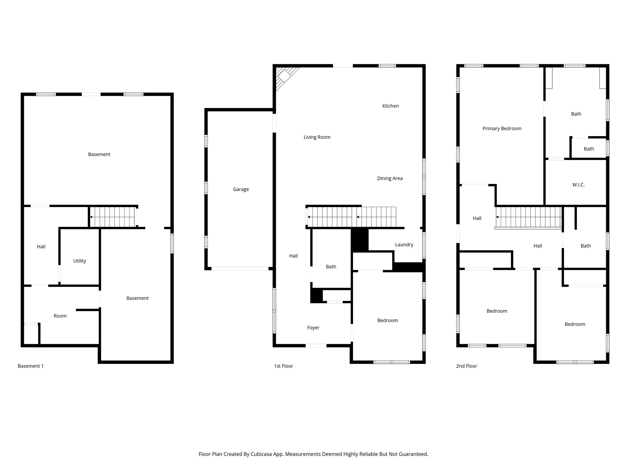
Floor Plans
Map
2918 Level Ridge Rd SE
Atlanta, GA 30354
Scroll to Content
Images
Slideshow
Photo Grid
Hide
Previous
Next
Show more
Floor Plans
Slideshow
Photo Grid
Hide
Previous
Next