153 York Place Calhoun, GA 30701

Scroll to Content

Details

PRIVATE ESTATE LIVING-THE PROPERTY BUYERS HAVE BEEN WAITING FOR! Ideally located on a cul-de-sac and situated on 2.29 breathtaking wooded acres, this beautifully maintained 4-bedroom, 4-bath, FOUR-SIDED BRICK home offers the perfect blend of privacy, space, and convenience—just 1 mile from I-75 with easy access to Chattanooga and Atlanta. And the best part? NO HOA.
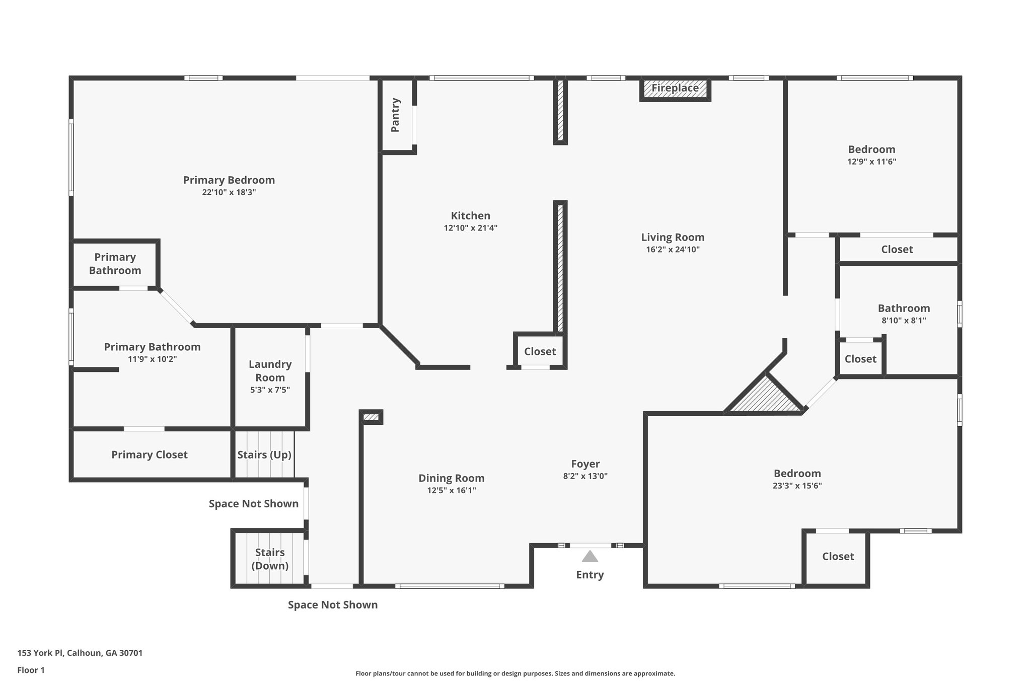
Inside, this spacious 4,223 square foot home is a thoughtfully designed layout featuring rich hardwood flooring, crown molding, and double tray ceilings adding architectural depth, updated paint and fixtures, and abundant natural light throughout. Meticulously cared for, the home includes a newer roof and generous storage areas.
The versatile floor plan is a true standout—ideal for multi-generational living, teens, or extended family. The lower terrace level features its own separate entrance and living space. Whether used for a guest suite, in-law quarters, or recreation, the possibilities are endless.
Car enthusiasts, hobbyists, and entrepreneurs will appreciate the additional garage located at terrace-level which accommodates up to 3 more cars—or the flexibility to create a workshop or studio.
Step outside to experience one of the most beautiful and usable lots you'll find anywhere. Not only does the backyard have a fully enclosed wrought iron fence, the covered back porch is equipped with a natural gas hookup for the grill, making outdoor entertaining easy. Additional locked storage tucked under the back porch provides the perfect space for tools, outdoor gear, or seasonal items—keeping everything organized and secure. A professionally designed, app-controlled irrigation system keeps the grounds lush with ease. Whether you envision a thriving garden, unforgettable gatherings, or simply soaking in the peaceful natural setting, this property delivers.
If you've been searching for space, privacy, character, and flexibility—all in a prime location—this is the one.
Schedule your private showing today and experience everything this exceptional home has to offer.

  • $765,000
  • 4 Bedrooms
  • 4 Bathrooms
  • 4,223 Sq/ft
  • Lot 2.29 Acres
  • 6 Parking Spots
  • Built in 2001
  • MLS: 7758149

Images

Floor Plans

3D Tour